Poznaj naszą aktualną ofertę mieszkań i domów, zaprojektowanych z myślą o najbardziej wymagających klientach. Znajdziesz tu informacje o nowo powstających projektach, które łączą w sobie nowoczesną architekturę, funkcjonalność oraz najwyższy standard wykończenia.
Zamieszkaj w nowoczesności przy ul. Księdza Stanisława Andrukiewicza. Zakątek Dolistówka to mieszkania dla każdego, gdzie design spotyka funkcjonalność w sercu osiedla Skorupy.
Termin zakończenia: 30.06.2026
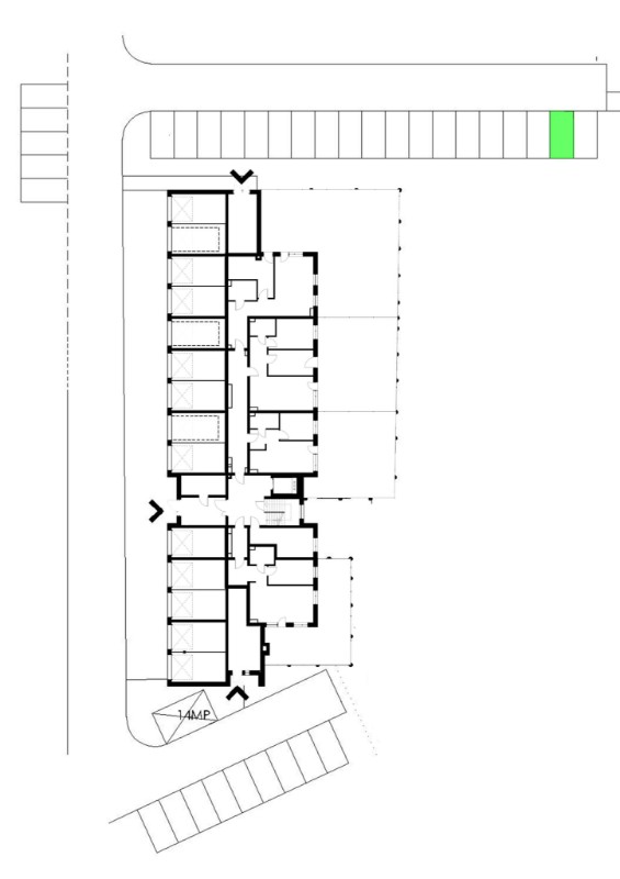
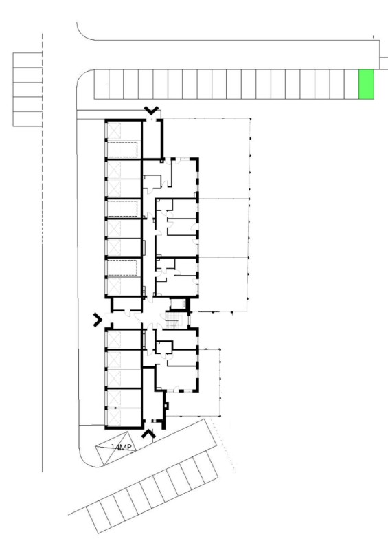
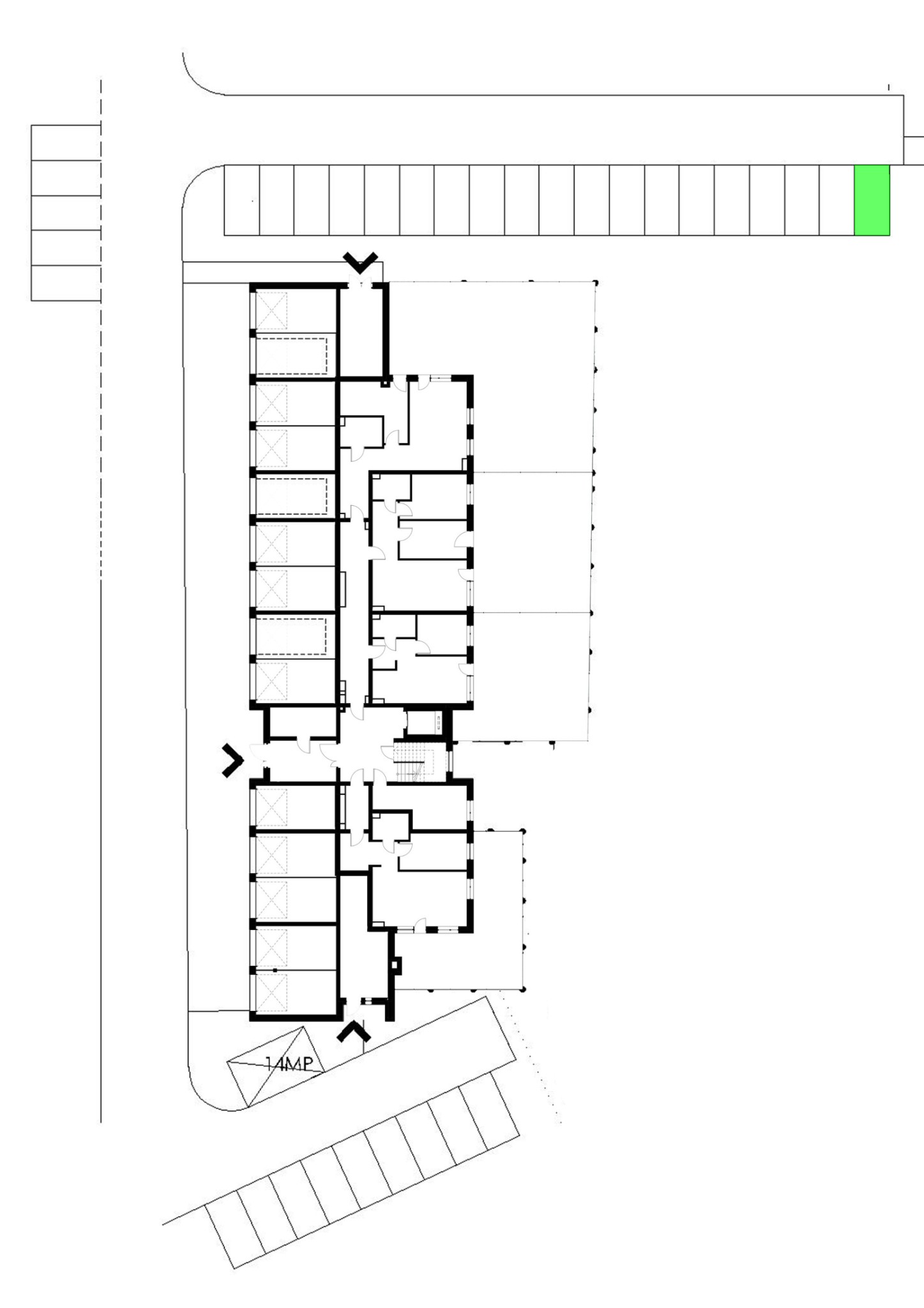
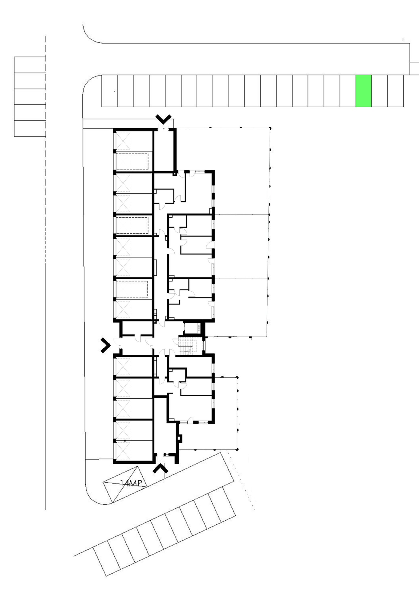
Zapraszamy do zapoznania się z naszą najnowszą inwestycją w Horodnianach – nowoczesnym, kameralnym budynku wielorodzinnym doskonale skomunikowanym z Białymstokiem.
Termin zakończenia: 30.05.2026
| 
                             
                                Adres
                             
                         | 
                        
                             
                                Pow
                                Powierzchnia
                             
                         | 
                        
                             
                                Cena brutto
                             
                         | 
                        ||||
|---|---|---|---|---|---|---|
| Horodniany "Złote Kaskady III" , Horodniany - g. 1 | 17,83 m2 | 
                                 
                                             60 000 zł
                                            
3 365                                                     zł/m2
                                            
                                         
                                         | 
                            ||||
| 
                                 Adres 
                                            Horodniany "Złote Kaskady III"  , Horodniany  - g. 1 
                                                Piętro 
                                                
                                                        Parter
                                                 
                                                Powierzchnia 
                                                17,83 m2 
                                                Cena brutto 
                                                60 000 zł 
                                            Status 
                                            
                                                    Dostępne
                                             
                                         | 
                        ||||||
| Horodniany "Złote Kaskady III" , Horodniany - g. 2 | 17,83 m2 | 
                                 
                                             60 000 zł
                                            
3 365                                                     zł/m2
                                            
                                         
                                         | 
                            ||||
| 
                                 Adres 
                                            Horodniany "Złote Kaskady III"  , Horodniany  - g. 2 
                                                Piętro 
                                                
                                                        Parter
                                                 
                                                Powierzchnia 
                                                17,83 m2 
                                                Cena brutto 
                                                60 000 zł 
                                            Status 
                                            
                                                    Dostępne
                                             
                                         | 
                        ||||||
| Horodniany "Złote Kaskady III" , Horodniany - g. 3 | 17,56 m2 | 
                                 
                                             60 000 zł
                                            
3 417                                                     zł/m2
                                            
                                         
                                         | 
                            ||||
| 
                                 Adres 
                                            Horodniany "Złote Kaskady III"  , Horodniany  - g. 3 
                                                Piętro 
                                                
                                                        Parter
                                                 
                                                Powierzchnia 
                                                17,56 m2 
                                                Cena brutto 
                                                60 000 zł 
                                            Status 
                                            
                                                    Dostępne
                                             
                                         | 
                        ||||||
| Horodniany "Złote Kaskady III" , Horodniany - m.p. zewn. 3 | 12,50 m2 | 
                                 
                                             15 000 zł
                                            
1 200                                                     zł/m2
                                            
                                         
                                         | 
                            ||||
| 
                                 Adres 
                                            Horodniany "Złote Kaskady III"  , Horodniany  - g. 3 
                                                Piętro 
                                                
                                                        Parter
                                                 
                                                Powierzchnia 
                                                12,50 m2 
                                                Cena brutto 
                                                15 000 zł 
                                            Status 
                                            
                                                    Dostępne
                                             
                                         | 
                        ||||||
| Horodniany "Złote Kaskady III" , Horodniany - g. 4 | 17,56 m2 | 
                                 
                                             60 000 zł
                                            
3 417                                                     zł/m2
                                            
                                         
                                         | 
                            ||||
| 
                                 Adres 
                                            Horodniany "Złote Kaskady III"  , Horodniany  - g. 4 
                                                Piętro 
                                                
                                                        Parter
                                                 
                                                Powierzchnia 
                                                17,56 m2 
                                                Cena brutto 
                                                60 000 zł 
                                            Status 
                                            
                                                    Dostępne
                                             
                                         | 
                        ||||||
| Horodniany "Złote Kaskady III" , Horodniany - g. 5 | 17,58 m2 | 
                                 
                                             60 000 zł
                                            
3 413                                                     zł/m2
                                            
                                         
                                         | 
                            ||||
| 
                                 Adres 
                                            Horodniany "Złote Kaskady III"  , Horodniany  - g. 5 
                                                Piętro 
                                                
                                                        Parter
                                                 
                                                Powierzchnia 
                                                17,58 m2 
                                                Cena brutto 
                                                60 000 zł 
                                            Status 
                                            
                                                    Dostępne
                                             
                                         | 
                        ||||||
| Horodniany "Złote Kaskady III" , Horodniany - m.p. zewn. 5 | 12,50 m2 | 
                                 
                                             15 000 zł
                                            
1 200                                                     zł/m2
                                            
                                         
                                         | 
                            ||||
| 
                                 Adres 
                                            Horodniany "Złote Kaskady III"  , Horodniany  - g. 5 
                                                Piętro 
                                                
                                                        Parter
                                                 
                                                Powierzchnia 
                                                12,50 m2 
                                                Cena brutto 
                                                15 000 zł 
                                            Status 
                                            
                                                    Dostępne
                                             
                                         | 
                        ||||||
| Horodniany "Złote Kaskady III" , Horodniany - g. 6 | 17,55 m2 | 
                                 
                                             60 000 zł
                                            
3 419                                                     zł/m2
                                            
                                         
                                         | 
                            ||||
| 
                                 Adres 
                                            Horodniany "Złote Kaskady III"  , Horodniany  - g. 6 
                                                Piętro 
                                                
                                                        Parter
                                                 
                                                Powierzchnia 
                                                17,55 m2 
                                                Cena brutto 
                                                60 000 zł 
                                            Status 
                                            
                                                    Dostępne
                                             
                                         | 
                        ||||||
| Horodniany "Złote Kaskady III" , Horodniany - m.p. zewn. 6 | 12,50 m2 | 
                                 
                                             15 000 zł
                                            
1 200                                                     zł/m2
                                            
                                         
                                         | 
                            ||||
| 
                                 Adres 
                                            Horodniany "Złote Kaskady III"  , Horodniany  - g. 6 
                                                Piętro 
                                                
                                                        Parter
                                                 
                                                Powierzchnia 
                                                12,50 m2 
                                                Cena brutto 
                                                15 000 zł 
                                            Status 
                                            
                                                    Dostępne
                                             
                                         | 
                        ||||||
| Horodniany "Złote Kaskady III" , Horodniany - g. 7 | 17,55 m2 | 
                                 
                                             60 000 zł
                                            
3 419                                                     zł/m2
                                            
                                         
                                         | 
                            ||||
| 
                                 Adres 
                                            Horodniany "Złote Kaskady III"  , Horodniany  - g. 7 
                                                Piętro 
                                                
                                                        Parter
                                                 
                                                Powierzchnia 
                                                17,55 m2 
                                                Cena brutto 
                                                60 000 zł 
                                            Status 
                                            
                                                    Dostępne
                                             
                                         | 
                        ||||||
| Horodniany "Złote Kaskady III" , Horodniany - m.p. zewn. 7 | 12,50 m2 | 
                                 
                                             15 000 zł
                                            
1 200                                                     zł/m2
                                            
                                         
                                         | 
                            ||||
| 
                                 Adres 
                                            Horodniany "Złote Kaskady III"  , Horodniany  - g. 7 
                                                Piętro 
                                                
                                                        Parter
                                                 
                                                Powierzchnia 
                                                12,50 m2 
                                                Cena brutto 
                                                15 000 zł 
                                            Status 
                                            
                                                    Dostępne
                                             
                                         | 
                        ||||||
| Horodniany "Złote Kaskady III" , Horodniany - m.p. zewn. 8 | 12,50 m2 | 
                                 
                                             15 000 zł
                                            
1 200                                                     zł/m2
                                            
                                         
                                         | 
                            ||||
| 
                                 Adres 
                                            Horodniany "Złote Kaskady III"  , Horodniany  - g. 8 
                                                Piętro 
                                                
                                                        Parter
                                                 
                                                Powierzchnia 
                                                12,50 m2 
                                                Cena brutto 
                                                15 000 zł 
                                            Status 
                                            
                                                    Dostępne
                                             
                                         | 
                        ||||||
| Horodniany "Złote Kaskady III" , Horodniany - g. 8 | 17,55 m2 | 
                                 
                                             60 000 zł
                                            
3 419                                                     zł/m2
                                            
                                         
                                         | 
                            ||||
| 
                                 Adres 
                                            Horodniany "Złote Kaskady III"  , Horodniany  - g. 8 
                                                Piętro 
                                                
                                                        Parter
                                                 
                                                Powierzchnia 
                                                17,55 m2 
                                            Status 
                                            
                                                    Sprzedane
                                             
                                         | 
                        ||||||
| Horodniany "Złote Kaskady III" , Horodniany - g. 9 | 17,55 m2 | 
                                 
                                             60 000 zł
                                            
3 419                                                     zł/m2
                                            
                                         
                                         | 
                            ||||
| 
                                 Adres 
                                            Horodniany "Złote Kaskady III"  , Horodniany  - g. 9 
                                                Piętro 
                                                
                                                        Parter
                                                 
                                                Powierzchnia 
                                                17,55 m2 
                                                Cena brutto 
                                                60 000 zł 
                                            Status 
                                            
                                                    Dostępne
                                             
                                         | 
                        ||||||
| Horodniany "Złote Kaskady III" , Horodniany - m.p. zewn. 9 | 12,50 m2 | 
                                 
                                             15 000 zł
                                            
1 200                                                     zł/m2
                                            
                                         
                                         | 
                            ||||
| 
                                 Adres 
                                            Horodniany "Złote Kaskady III"  , Horodniany  - g. 9 
                                                Piętro 
                                                
                                                        Parter
                                                 
                                                Powierzchnia 
                                                12,50 m2 
                                                Cena brutto 
                                                15 000 zł 
                                            Status 
                                            
                                                    Dostępne
                                             
                                         | 
                        ||||||
| Horodniany "Złote Kaskady III" , Horodniany - m.p. zewn. 10 | 12,50 m2 | 
                                 
                                             15 000 zł
                                            
1 200                                                     zł/m2
                                            
                                         
                                         | 
                            ||||
| 
                                 Adres 
                                            Horodniany "Złote Kaskady III"  , Horodniany  - g. 10 
                                                Piętro 
                                                
                                                        Parter
                                                 
                                                Powierzchnia 
                                                12,50 m2 
                                                Cena brutto 
                                                15 000 zł 
                                            Status 
                                            
                                                    Dostępne
                                             
                                         | 
                        ||||||
| Horodniany "Złote Kaskady III" , Horodniany - g. 10 | 17,85 m2 | 
                                 
                                             60 000 zł
                                            
3 361                                                     zł/m2
                                            
                                         
                                         | 
                            ||||
| 
                                 Adres 
                                            Horodniany "Złote Kaskady III"  , Horodniany  - g. 10 
                                                Piętro 
                                                
                                                        Parter
                                                 
                                                Powierzchnia 
                                                17,85 m2 
                                            Status 
                                            
                                                    Sprzedane
                                             
                                         | 
                        ||||||
| Horodniany "Złote Kaskady III" , Horodniany - g. 11 | 17,51 m2 | 
                                 
                                             60 000 zł
                                            
3 427                                                     zł/m2
                                            
                                         
                                         | 
                            ||||
| 
                                 Adres 
                                            Horodniany "Złote Kaskady III"  , Horodniany  - g. 11 
                                                Piętro 
                                                
                                                        Parter
                                                 
                                                Powierzchnia 
                                                17,51 m2 
                                                Cena brutto 
                                                60 000 zł 
                                            Status 
                                            
                                                    Dostępne
                                             
                                         | 
                        ||||||
| Horodniany "Złote Kaskady III" , Horodniany - m.p. zewn. 11 | 12,50 m2 | 
                                 
                                             15 000 zł
                                            
1 200                                                     zł/m2
                                            
                                         
                                         | 
                            ||||
| 
                                 Adres 
                                            Horodniany "Złote Kaskady III"  , Horodniany  - g. 11 
                                                Piętro 
                                                
                                                        Parter
                                                 
                                                Powierzchnia 
                                                12,50 m2 
                                                Cena brutto 
                                                15 000 zł 
                                            Status 
                                            
                                                    Dostępne
                                             
                                         | 
                        ||||||
| Horodniany "Złote Kaskady III" , Horodniany - g. 12 | 17,60 m2 | 
                                 
                                             60 000 zł
                                            
3 409                                                     zł/m2
                                            
                                         
                                         | 
                            ||||
| 
                                 Adres 
                                            Horodniany "Złote Kaskady III"  , Horodniany  - g. 12 
                                                Piętro 
                                                
                                                        Parter
                                                 
                                                Powierzchnia 
                                                17,60 m2 
                                                Cena brutto 
                                                60 000 zł 
                                            Status 
                                            
                                                    Dostępne
                                             
                                         | 
                        ||||||
| Horodniany "Złote Kaskady III" , Horodniany - m.p. zewn. 12 | 12,50 m2 | 
                                 
                                             15 000 zł
                                            
1 200                                                     zł/m2
                                            
                                         
                                         | 
                            ||||
| 
                                 Adres 
                                            Horodniany "Złote Kaskady III"  , Horodniany  - g. 12 
                                                Piętro 
                                                
                                                        Parter
                                                 
                                                Powierzchnia 
                                                12,50 m2 
                                                Cena brutto 
                                                15 000 zł 
                                            Status 
                                            
                                                    Dostępne
                                             
                                         | 
                        ||||||
| Horodniany "Złote Kaskady III" , Horodniany - m.p. zewn. 13 | 12,50 m2 | 
                                 
                                             15 000 zł
                                            
1 200                                                     zł/m2
                                            
                                         
                                         | 
                            ||||
| 
                                 Adres 
                                            Horodniany "Złote Kaskady III"  , Horodniany  - g. 13 
                                                Piętro 
                                                
                                                        Parter
                                                 
                                                Powierzchnia 
                                                12,50 m2 
                                                Cena brutto 
                                                15 000 zł 
                                            Status 
                                            
                                                    Dostępne
                                             
                                         | 
                        ||||||
| Horodniany "Złote Kaskady III" , Horodniany - g. 13 | 17,82 m2 | 
                                 
                                             60 000 zł
                                            
3 367                                                     zł/m2
                                            
                                         
                                         | 
                            ||||
| 
                                 Adres 
                                            Horodniany "Złote Kaskady III"  , Horodniany  - g. 13 
                                                Piętro 
                                                
                                                        Parter
                                                 
                                                Powierzchnia 
                                                17,82 m2 
                                            Status 
                                            
                                                    Sprzedane
                                             
                                         | 
                        ||||||
| Horodniany "Złote Kaskady III" , Horodniany - g. 14 | 17,82 m2 | 
                                 
                                             60 000 zł
                                            
3 367                                                     zł/m2
                                            
                                         
                                         | 
                            ||||
| 
                                 Adres 
                                            Horodniany "Złote Kaskady III"  , Horodniany  - g. 14 
                                                Piętro 
                                                
                                                        Parter
                                                 
                                                Powierzchnia 
                                                17,82 m2 
                                                Cena brutto 
                                                60 000 zł 
                                            Status 
                                            
                                                    Dostępne
                                             
                                         | 
                        ||||||
| Horodniany "Złote Kaskady III" , Horodniany - m.p. zewn. 14 | 12,50 m2 | 
                                 
                                             15 000 zł
                                            
1 200                                                     zł/m2
                                            
                                         
                                         | 
                            ||||
| 
                                 Adres 
                                            Horodniany "Złote Kaskady III"  , Horodniany  - g. 14 
                                                Piętro 
                                                
                                                        Parter
                                                 
                                                Powierzchnia 
                                                12,50 m2 
                                                Cena brutto 
                                                15 000 zł 
                                            Status 
                                            
                                                    Dostępne
                                             
                                         | 
                        ||||||
| Horodniany "Złote Kaskady III" , Horodniany - m.p. zewn. 15 | 12,50 m2 | 
                                 
                                             15 000 zł
                                            
1 200                                                     zł/m2
                                            
                                         
                                         | 
                            ||||
| 
                                 Adres 
                                            Horodniany "Złote Kaskady III"  , Horodniany  - g. 15 
                                                Piętro 
                                                
                                                        Parter
                                                 
                                                Powierzchnia 
                                                12,50 m2 
                                                Cena brutto 
                                                15 000 zł 
                                            Status 
                                            
                                                    Dostępne
                                             
                                         | 
                        ||||||
| Horodniany "Złote Kaskady III" , Horodniany - m.p. zewn. 16 | 12,50 m2 | 
                                 
                                             15 000 zł
                                            
1 200                                                     zł/m2
                                            
                                         
                                         | 
                            ||||
| 
                                 Adres 
                                            Horodniany "Złote Kaskady III"  , Horodniany  - g. 16 
                                                Piętro 
                                                
                                                        Parter
                                                 
                                                Powierzchnia 
                                                12,50 m2 
                                                Cena brutto 
                                                15 000 zł 
                                            Status 
                                            
                                                    Dostępne
                                             
                                         | 
                        ||||||
| Horodniany "Złote Kaskady III" , Horodniany - m.p. zewn. 17 | 12,50 m2 | 
                                 
                                             15 000 zł
                                            
1 200                                                     zł/m2
                                            
                                         
                                         | 
                            ||||
| 
                                 Adres 
                                            Horodniany "Złote Kaskady III"  , Horodniany  - g. 17 
                                                Piętro 
                                                
                                                        Parter
                                                 
                                                Powierzchnia 
                                                12,50 m2 
                                                Cena brutto 
                                                15 000 zł 
                                            Status 
                                            
                                                    Dostępne
                                             
                                         | 
                        ||||||
| Horodniany "Złote Kaskady III" , Horodniany - m.p. zewn. 18 | 12,50 m2 | 
                                 
                                             15 000 zł
                                            
1 200                                                     zł/m2
                                            
                                         
                                         | 
                            ||||
| 
                                 Adres 
                                            Horodniany "Złote Kaskady III"  , Horodniany  - g. 18 
                                                Piętro 
                                                
                                                        Parter
                                                 
                                                Powierzchnia 
                                                12,50 m2 
                                                Cena brutto 
                                                15 000 zł 
                                            Status 
                                            
                                                    Dostępne
                                             
                                         | 
                        ||||||
| Horodniany "Złote Kaskady III" , Horodniany - m.p. zewn. 19 | 12,50 m2 | 
                                 
                                             15 000 zł
                                            
1 200                                                     zł/m2
                                            
                                         
                                         | 
                            ||||
| 
                                 Adres 
                                            Horodniany "Złote Kaskady III"  , Horodniany  - g. 19 
                                                Piętro 
                                                
                                                        Parter
                                                 
                                                Powierzchnia 
                                                12,50 m2 
                                                Cena brutto 
                                                15 000 zł 
                                            Status 
                                            
                                                    Dostępne
                                             
                                         | 
                        ||||||
| Zakątek Dolistówka , Białystok - m.p. 2 | 20,91 m2 | 
                                 
                                             49 000 zł
                                            
2 343                                                     zł/m2
                                            
                                         
                                         | 
                            ||||
| 
                                 Adres 
                                            Zakątek Dolistówka , Białystok - g. 2 
                                                Piętro 
                                                
                                                        Parter
                                                 
                                                Powierzchnia 
                                                20,91 m2 
                                                Cena brutto 
                                                49 000 zł 
                                            Status 
                                            
                                                    Dostępne
                                             
                                         | 
                        ||||||
| Zakątek Dolistówka , Białystok - m.p. 3 | 19,31 m2 | 
                                 
                                             48 000 zł
                                            
2 486                                                     zł/m2
                                            
                                         
                                         | 
                            ||||
| 
                                 Adres 
                                            Zakątek Dolistówka , Białystok - g. 3 
                                                Piętro 
                                                
                                                        Parter
                                                 
                                                Powierzchnia 
                                                19,31 m2 
                                                Cena brutto 
                                                48 000 zł 
                                            Status 
                                            
                                                    Dostępne
                                             
                                         | 
                        ||||||
| Zakątek Dolistówka , Białystok - m.p. 4 | 17,94 m2 | 
                                 
                                             47 000 zł
                                            
2 620                                                     zł/m2
                                            
                                         
                                         | 
                            ||||
| 
                                 Adres 
                                            Zakątek Dolistówka , Białystok - g. 4 
                                                Piętro 
                                                
                                                        Parter
                                                 
                                                Powierzchnia 
                                                17,94 m2 
                                                Cena brutto 
                                                47 000 zł 
                                            Status 
                                            
                                                    Dostępne
                                             
                                         | 
                        ||||||
| Zakątek Dolistówka , Białystok - m.p. 11 | 15,22 m2 | 
                                 
                                             45 000 zł
                                            
2 957                                                     zł/m2
                                            
                                         
                                         | 
                            ||||
| 
                                 Adres 
                                            Zakątek Dolistówka , Białystok - g. 11 
                                                Piętro 
                                                
-1                                                 
                                                Powierzchnia 
                                                15,22 m2 
                                                Cena brutto 
                                                45 000 zł 
                                            Status 
                                            
                                                    Dostępne
                                             
                                         | 
                        ||||||
| Zakątek Dolistówka , Białystok - m.p. 12 | 15,85 m2 | 
                                 
                                             45 000 zł
                                            
2 839                                                     zł/m2
                                            
                                         
                                         | 
                            ||||
| 
                                 Adres 
                                            Zakątek Dolistówka , Białystok - g. 12 
                                                Piętro 
                                                
                                                        Parter
                                                 
                                                Powierzchnia 
                                                15,85 m2 
                                                Cena brutto 
                                                45 000 zł 
                                            Status 
                                            
                                                    Dostępne
                                             
                                         | 
                        ||||||
| Zakątek Dolistówka , Białystok - m.p. 13 | 14,60 m2 | 
                                 
                                             44 000 zł
                                            
3 014                                                     zł/m2
                                            
                                         
                                         | 
                            ||||
| 
                                 Adres 
                                            Zakątek Dolistówka , Białystok - g. 13 
                                                Piętro 
                                                
                                                        Parter
                                                 
                                                Powierzchnia 
                                                14,60 m2 
                                                Cena brutto 
                                                44 000 zł 
                                            Status 
                                            
                                                    Dostępne
                                             
                                         | 
                        ||||||
| Zakątek Dolistówka , Białystok - m.p. 14 | 13,92 m2 | 
                                 
                                             43 000 zł
                                            
3 089                                                     zł/m2
                                            
                                         
                                         | 
                            ||||
| 
                                 Adres 
                                            Zakątek Dolistówka , Białystok - g. 14 
                                                Piętro 
                                                
                                                        Parter
                                                 
                                                Powierzchnia 
                                                13,92 m2 
                                                Cena brutto 
                                                43 000 zł 
                                            Status 
                                            
                                                    Dostępne
                                             
                                         | 
                        ||||||
| Zakątek Dolistówka , Białystok - m.p. 21 | 18,20 m2 | 
                                 
                                             47 000 zł
                                            
2 582                                                     zł/m2
                                            
                                         
                                         | 
                            ||||
| 
                                 Adres 
                                            Zakątek Dolistówka , Białystok - g. 21 
                                                Piętro 
                                                
-1                                                 
                                                Powierzchnia 
                                                18,20 m2 
                                                Cena brutto 
                                                47 000 zł 
                                            Status 
                                            
                                                    Dostępne
                                             
                                         | 
                        ||||||
| Zakątek Dolistówka , Białystok - m.p. 22 | 18,18 m2 | 
                                 
                                             47 000 zł
                                            
2 585                                                     zł/m2
                                            
                                         
                                         | 
                            ||||
| 
                                 Adres 
                                            Zakątek Dolistówka , Białystok - g. 22 
                                                Piętro 
                                                
-1                                                 
                                                Powierzchnia 
                                                18,18 m2 
                                                Cena brutto 
                                                47 000 zł 
                                            Status 
                                            
                                                    Dostępne
                                             
                                         | 
                        ||||||
| Zakątek Dolistówka , Białystok - m.p. 23 | 19,24 m2 | 
                                 
                                             48 000 zł
                                            
2 495                                                     zł/m2
                                            
                                         
                                         | 
                            ||||
| 
                                 Adres 
                                            Zakątek Dolistówka , Białystok - g. 23 
                                                Piętro 
                                                
-1                                                 
                                                Powierzchnia 
                                                19,24 m2 
                                                Cena brutto 
                                                48 000 zł 
                                            Status 
                                            
                                                    Dostępne
                                             
                                         | 
                        ||||||
| Zakątek Dolistówka , Białystok - m.p. 30 | 30,70 m2 | 
                                 
                                             79 000 zł
                                            
2 573                                                     zł/m2
                                            
                                         
                                         | 
                            ||||
| 
                                 Adres 
                                            Zakątek Dolistówka , Białystok - g. 30 
                                                Piętro 
                                                
-1                                                 
                                                Powierzchnia 
                                                30,70 m2 
                                                Cena brutto 
                                                79 000 zł 
                                            Status 
                                            
                                                    Dostępne
                                             
                                         | 
                        ||||||
| Zakątek Dolistówka , Białystok - m.p. 33 | 17,54 m2 | 
                                 
                                             47 000 zł
                                            
2 680                                                     zł/m2
                                            
                                         
                                         | 
                            ||||
| 
                                 Adres 
                                            Zakątek Dolistówka , Białystok - g. 33 
                                                Piętro 
                                                
-1                                                 
                                                Powierzchnia 
                                                17,54 m2 
                                                Cena brutto 
                                                47 000 zł 
                                            Status 
                                            
                                                    Dostępne
                                             
                                         | 
                        ||||||
| Zakątek Dolistówka , Białystok - m.p. 34 | 17,54 m2 | 
                                 
                                             47 000 zł
                                            
2 680                                                     zł/m2
                                            
                                         
                                         | 
                            ||||
| 
                                 Adres 
                                            Zakątek Dolistówka , Białystok - g. 34 
                                                Piętro 
                                                
-1                                                 
                                                Powierzchnia 
                                                17,54 m2 
                                                Cena brutto 
                                                47 000 zł 
                                            Status 
                                            
                                                    Dostępne
                                             
                                         | 
                        ||||||
| Zakątek Dolistówka , Białystok - m.p. 35 | 17,54 m2 | 
                                 
                                             47 000 zł
                                            
2 680                                                     zł/m2
                                            
                                         
                                         | 
                            ||||
| 
                                 Adres 
                                            Zakątek Dolistówka , Białystok - g. 35 
                                                Piętro 
                                                
-1                                                 
                                                Powierzchnia 
                                                17,54 m2 
                                                Cena brutto 
                                                47 000 zł 
                                            Status 
                                            
                                                    Dostępne
                                             
                                         | 
                        ||||||
| Zakątek Dolistówka , Białystok - m.p. 36 | 17,54 m2 | 
                                 
                                             47 000 zł
                                            
2 680                                                     zł/m2
                                            
                                         
                                         | 
                            ||||
| 
                                 Adres 
                                            Zakątek Dolistówka , Białystok - g. 36 
                                                Piętro 
                                                
-1                                                 
                                                Powierzchnia 
                                                17,54 m2 
                                                Cena brutto 
                                                47 000 zł 
                                            Status 
                                            
                                                    Dostępne
                                             
                                         | 
                        ||||||
| Zakątek Dolistówka , Białystok - m.p. 37 | 19,71 m2 | 
                                 
                                             49 000 zł
                                            
2 486                                                     zł/m2
                                            
                                         
                                         | 
                            ||||
| 
                                 Adres 
                                            Zakątek Dolistówka , Białystok - g. 37 
                                                Piętro 
                                                
-1                                                 
                                                Powierzchnia 
                                                19,71 m2 
                                                Cena brutto 
                                                49 000 zł 
                                            Status 
                                            
                                                    Dostępne
                                             
                                         | 
                        ||||||
| Zakątek Dolistówka , Białystok - m.p. 40 | 16,56 m2 | 
                                 
                                             47 000 zł
                                            
2 838                                                     zł/m2
                                            
                                         
                                         | 
                            ||||
| 
                                 Adres 
                                            Zakątek Dolistówka , Białystok - g. 40 
                                                Piętro 
                                                
-1                                                 
                                                Powierzchnia 
                                                16,56 m2 
                                                Cena brutto 
                                                47 000 zł 
                                            Status 
                                            
                                                    Dostępne
                                             
                                         | 
                        ||||||
| Zakątek Dolistówka , Białystok - m.p. 43 | 19,96 m2 | 
                                 
                                             49 000 zł
                                            
2 455                                                     zł/m2
                                            
                                         
                                         | 
                            ||||
| 
                                 Adres 
                                            Zakątek Dolistówka , Białystok - g. 43 
                                                Piętro 
                                                
-1                                                 
                                                Powierzchnia 
                                                19,96 m2 
                                                Cena brutto 
                                                49 000 zł 
                                            Status 
                                            
                                                    Dostępne
                                             
                                         | 
                        ||||||
| Zakątek Dolistówka , Białystok - m.p. 44 | 16,60 m2 | 
                                 
                                             47 000 zł
                                            
2 831                                                     zł/m2
                                            
                                         
                                         | 
                            ||||
| 
                                 Adres 
                                            Zakątek Dolistówka , Białystok - g. 44 
                                                Piętro 
                                                
-1                                                 
                                                Powierzchnia 
                                                16,60 m2 
                                                Cena brutto 
                                                47 000 zł 
                                            Status 
                                            
                                                    Dostępne
                                             
                                         | 
                        ||||||
| Zakątek Dolistówka , Białystok - m.p. 45 | 23,59 m2 | 
                                 
                                             61 000 zł
                                            
2 586                                                     zł/m2
                                            
                                         
                                         | 
                            ||||
| 
                                 Adres 
                                            Zakątek Dolistówka , Białystok - g. 45 
                                                Piętro 
                                                
-1                                                 
                                                Powierzchnia 
                                                23,59 m2 
                                            Status 
                                            
                                                    Sprzedane
                                             
                                         | 
                        ||||||
| Zakątek Dolistówka , Białystok - m.p. 46 | 23,69 m2 | 
                                 
                                             61 000 zł
                                            
2 575                                                     zł/m2
                                            
                                         
                                         | 
                            ||||
| 
                                 Adres 
                                            Zakątek Dolistówka , Białystok - g. 46 
                                                Piętro 
                                                
-1                                                 
                                                Powierzchnia 
                                                23,69 m2 
                                            Status 
                                            
                                                    Sprzedane
                                             
                                         | 
                        ||||||
| Zakątek Dolistówka , Białystok - m.p. 47 | 15,50 m2 | 
                                 
                                             45 000 zł
                                            
2 903                                                     zł/m2
                                            
                                         
                                         | 
                            ||||
| 
                                 Adres 
                                            Zakątek Dolistówka , Białystok - g. 47 
                                                Piętro 
                                                
-1                                                 
                                                Powierzchnia 
                                                15,50 m2 
                                                Cena brutto 
                                                45 000 zł 
                                            Status 
                                            
                                                    Dostępne
                                             
                                         | 
                        ||||||
| Zakątek Dolistówka , Białystok - m.p. 48 | 14,81 m2 | 
                                 
                                             44 000 zł
                                            
2 971                                                     zł/m2
                                            
                                         
                                         | 
                            ||||
| 
                                 Adres 
                                            Zakątek Dolistówka , Białystok - g. 48 
                                                Piętro 
                                                
-1                                                 
                                                Powierzchnia 
                                                14,81 m2 
                                                Cena brutto 
                                                44 000 zł 
                                            Status 
                                            
                                                    Dostępne
                                             
                                         | 
                        ||||||
| Zakątek Dolistówka , Białystok - m.p. 50 | 20,16 m2 | 
                                 
                                             65 000 zł
                                            
3 224                                                     zł/m2
                                            
                                         
                                         | 
                            ||||
| 
                                 Adres 
                                            Zakątek Dolistówka , Białystok - g. 50 
                                                Piętro 
                                                
-1                                                 
                                                Powierzchnia 
                                                20,16 m2 
                                                Cena brutto 
                                                65 000 zł 
                                            Status 
                                            
                                                    Dostępne
                                             
                                         | 
                        ||||||
| Zakątek Dolistówka , Białystok - m.p. 51 | 14,25 m2 | 
                                 
                                             44 000 zł
                                            
3 088                                                     zł/m2
                                            
                                         
                                         | 
                            ||||
| 
                                 Adres 
                                            Zakątek Dolistówka , Białystok - g. 51 
                                                Piętro 
                                                
-1                                                 
                                                Powierzchnia 
                                                14,25 m2 
                                                Cena brutto 
                                                44 000 zł 
                                            Status 
                                            
                                                    Dostępne
                                             
                                         | 
                        ||||||
| Zakątek Dolistówka , Białystok - m.p. 52 | 13,93 m2 | 
                                 
                                             44 000 zł
                                            
3 159                                                     zł/m2
                                            
                                         
                                         | 
                            ||||
| 
                                 Adres 
                                            Zakątek Dolistówka , Białystok - g. 52 
                                                Piętro 
                                                
-1                                                 
                                                Powierzchnia 
                                                13,93 m2 
                                                Cena brutto 
                                                44 000 zł 
                                            Status 
                                            
                                                    Dostępne
                                             
                                         | 
                        ||||||
| Zakątek Dolistówka , Białystok - m.p. 53 | 14,30 m2 | 
                                 
                                             44 000 zł
                                            
3 077                                                     zł/m2
                                            
                                         
                                         | 
                            ||||
| 
                                 Adres 
                                            Zakątek Dolistówka , Białystok - g. 53 
                                                Piętro 
                                                
-1                                                 
                                                Powierzchnia 
                                                14,30 m2 
                                                Cena brutto 
                                                44 000 zł 
                                            Status 
                                            
                                                    Dostępne
                                             
                                         | 
                        ||||||
| Zakątek Dolistówka , Białystok - m.p. 54 | 15,19 m2 | 
                                 
                                             45 000 zł
                                            
2 962                                                     zł/m2
                                            
                                         
                                         | 
                            ||||
| 
                                 Adres 
                                            Zakątek Dolistówka , Białystok - g. 54 
                                                Piętro 
                                                
-1                                                 
                                                Powierzchnia 
                                                15,19 m2 
                                                Cena brutto 
                                                45 000 zł 
                                            Status 
                                            
                                                    Dostępne
                                             
                                         | 
                        ||||||
| Zakątek Dolistówka , Białystok - m.p. 55 | 15,23 m2 | 
                                 
                                             45 000 zł
                                            
2 955                                                     zł/m2
                                            
                                         
                                         | 
                            ||||
| 
                                 Adres 
                                            Zakątek Dolistówka , Białystok - g. 55 
                                                Piętro 
                                                
-1                                                 
                                                Powierzchnia 
                                                15,23 m2 
                                                Cena brutto 
                                                45 000 zł 
                                            Status 
                                            
                                                    Dostępne
                                             
                                         | 
                        ||||||
| Zakątek Dolistówka , Białystok - m.p. 56 | 14,35 m2 | 
                                 
                                             44 000 zł
                                            
3 066                                                     zł/m2
                                            
                                         
                                         | 
                            ||||
| 
                                 Adres 
                                            Zakątek Dolistówka , Białystok - g. 56 
                                                Piętro 
                                                
-1                                                 
                                                Powierzchnia 
                                                14,35 m2 
                                                Cena brutto 
                                                44 000 zł 
                                            Status 
                                            
                                                    Dostępne
                                             
                                         | 
                        ||||||
| Zakątek Dolistówka , Białystok - m.p. 57 | 13,99 m2 | 
                                 
                                             44 000 zł
                                            
3 145                                                     zł/m2
                                            
                                         
                                         | 
                            ||||
| 
                                 Adres 
                                            Zakątek Dolistówka , Białystok - g. 57 
                                                Piętro 
                                                
-1                                                 
                                                Powierzchnia 
                                                13,99 m2 
                                                Cena brutto 
                                                44 000 zł 
                                            Status 
                                            
                                                    Dostępne
                                             
                                         | 
                        ||||||
| Zakątek Dolistówka , Białystok - m.p. 58 | 14,25 m2 | 
                                 
                                             44 000 zł
                                            
3 088                                                     zł/m2
                                            
                                         
                                         | 
                            ||||
| 
                                 Adres 
                                            Zakątek Dolistówka , Białystok - g. 58 
                                                Piętro 
                                                
-1                                                 
                                                Powierzchnia 
                                                14,25 m2 
                                                Cena brutto 
                                                44 000 zł 
                                            Status 
                                            
                                                    Dostępne
                                             
                                         | 
                        ||||||
| Zakątek Dolistówka , Białystok - m.p. 59 | 16,62 m2 | 
                                 
                                             47 000 zł
                                            
2 828                                                     zł/m2
                                            
                                         
                                         | 
                            ||||
| 
                                 Adres 
                                            Zakątek Dolistówka , Białystok - g. 59 
                                                Piętro 
                                                
-1                                                 
                                                Powierzchnia 
                                                16,62 m2 
                                                Cena brutto 
                                                47 000 zł 
                                            Status 
                                            
                                                    Dostępne
                                             
                                         | 
                        ||||||
| Zakątek Dolistówka , Białystok - m.p. 60 | 17,90 m2 | 
                                 
                                             47 000 zł
                                            
2 626                                                     zł/m2
                                            
                                         
                                         | 
                            ||||
| 
                                 Adres 
                                            Zakątek Dolistówka , Białystok - g. 60 
                                                Piętro 
                                                
-1                                                 
                                                Powierzchnia 
                                                17,90 m2 
                                            Status 
                                            
                                                    Sprzedane
                                             
                                         | 
                        ||||||
| Zakątek Dolistówka , Białystok - m.p. 61 | 17,56 m2 | 
                                 
                                             47 000 zł
                                            
2 677                                                     zł/m2
                                            
                                         
                                         | 
                            ||||
| 
                                 Adres 
                                            Zakątek Dolistówka , Białystok - g. 61 
                                                Piętro 
                                                
-1                                                 
                                                Powierzchnia 
                                                17,56 m2 
                                            Status 
                                            
                                                    Sprzedane
                                             
                                         | 
                        ||||||
| Zakątek Dolistówka , Białystok - m.p. 62 | 17,61 m2 | 
                                 
                                             47 000 zł
                                            
2 669                                                     zł/m2
                                            
                                         
                                         | 
                            ||||
| 
                                 Adres 
                                            Zakątek Dolistówka , Białystok - g. 62 
                                                Piętro 
                                                
-1                                                 
                                                Powierzchnia 
                                                17,61 m2 
                                            Status 
                                            
                                                    Sprzedane
                                             
                                         | 
                        ||||||
| Zakątek Dolistówka , Białystok - m.p. 63 | 18,67 m2 | 
                                 
                                             47 000 zł
                                            
2 517                                                     zł/m2
                                            
                                         
                                         | 
                            ||||
| 
                                 Adres 
                                            Zakątek Dolistówka , Białystok - g. 63 
                                                Piętro 
                                                
-1                                                 
                                                Powierzchnia 
                                                18,67 m2 
                                                Cena brutto 
                                                47 000 zł 
                                            Status 
                                            
                                                    Dostępne
                                             
                                         | 
                        ||||||
| Zakątek Dolistówka , Białystok - m.p. 64 | 16,64 m2 | 
                                 
                                             47 000 zł
                                            
2 825                                                     zł/m2
                                            
                                         
                                         | 
                            ||||
| 
                                 Adres 
                                            Zakątek Dolistówka , Białystok - g. 64 
                                                Piętro 
                                                
-1                                                 
                                                Powierzchnia 
                                                16,64 m2 
                                                Cena brutto 
                                                47 000 zł 
                                            Status 
                                            
                                                    Dostępne
                                             
                                         | 
                        ||||||
| Zakątek Dolistówka , Białystok - m.p. 65 | 14,28 m2 | 
                                 
                                             44 000 zł
                                            
3 081                                                     zł/m2
                                            
                                         
                                         | 
                            ||||
| 
                                 Adres 
                                            Zakątek Dolistówka , Białystok - g. 65 
                                                Piętro 
                                                
-1                                                 
                                                Powierzchnia 
                                                14,28 m2 
                                                Cena brutto 
                                                44 000 zł 
                                            Status 
                                            
                                                    Dostępne
                                             
                                         | 
                        ||||||